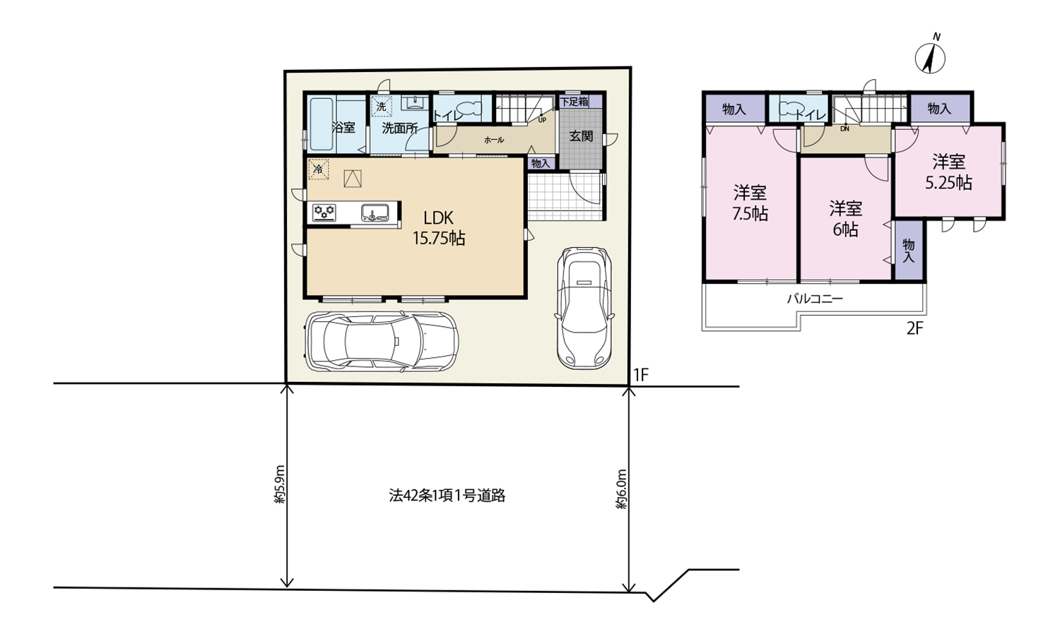
2025/2/6 田方郡函南町 間宮(伊豆仁田駅)新築建売住宅 人気の間宮 陽当り良好 商業施設充実エリア 価格 成約済 間取り 3LDK 築年数 新築 建物面積 85.08㎡(25.73坪) 土地面積 91.53㎡(27.68坪) 交通 伊豆箱根鉄道駿豆線 伊豆仁田駅 所在地 田方郡函南町間宮 投稿ナビゲーション 三島市 中(三島二日町駅)中古マンション裾野市 深良(裾野駅)6区画分譲地